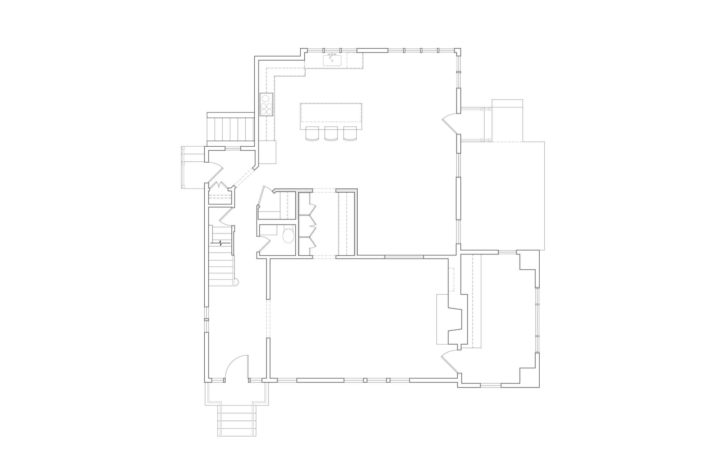
Scarsdale I
Renovation, 2023
Scarsdale, NY
Contractor: Landwide Services LLC
Interior Designer: LJI Design
Photographer: Kyle Caldwell
Renovation, 2023
Scarsdale, NY
Contractor: Landwide Services LLC
Interior Designer: LJI Design
Photographer: Kyle Caldwell